新北淡水店面法拍

台北法拍屋,台北市法拍屋,台北法院法拍屋

新北淡水店面法拍|淡水區法拍屋中正東路芎經園淡水紅樹林庭院壹樓優室法拍林小陽

芎經園淡水紅樹林庭院壹樓│中正東路二段5巷25號1樓
列印
  • 售4381萬
    1. 案號:公告中2026/03/11應買到期
    2. 類型:法拍店面
    3. 總登記坪數:
    4. 每坪單價:
    5. 地址:新北市淡水區中正東路二段5巷25號1樓 ★ 林小陽 0966-781-595
    1. (煩請告知聯絡人,您是在House-Info房屋網看到廣告,感恩幫忙)
    2. 0966-781-595
    1. 市話:
    2. 公司名稱:
    3. 公司地址:
    芎經園淡水紅樹林庭院壹樓│中正東路二段5巷25號1樓-QR CODE 我要留言 加LINE好友
物件介紹
詳細資料
銷售狀態
待標中
格局
依房屋現場實際狀況為準
屋齡
16年
車位
車位
所在樓層
1
電梯
沒有
法拍屋
拍次
應買到期日
開標日期
2026/03/11
瀏覽人次
121人次
坪數說明
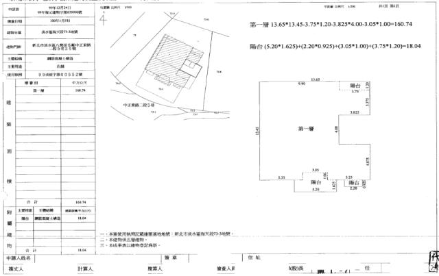
建物登記總坪數
105.99
主建物
48.62
附屬建物
5.45
公共設施
8.61
停車位
24.02
增建
19.29
土地登記總坪數
67.87
特色描述

Google 商店五星推薦 指定合法不動產經紀業 加入仲介公會顧客有保障 



 馬上熱搜 →→  優室法拍  →→  林小陽  ~專線~  0966781595  



------------------------------------------------------------------



芎經園淡水紅樹林庭院壹樓│中正東路二段5巷25號1樓



本物件拍賣資訊,若有遺誤,概以執行單位公告為準。 



------------------------------------------------------------------



台北市法拍屋 請點選各區任意門



 ●中正區法拍案件|●大同區法拍案件|●中山區法拍案件|●松山區法拍案件



 ●大安區法拍案件|●萬華區法拍案件|●信義區法拍案件|●士林區法拍案件



 ●北投區法拍案件|●內湖區法拍案件●南港區法拍案件|●文山區法拍案件



新北市法拍屋 請點選各區任意門



 ▓板橋區法拍案件|▓汐止區法拍案件▓深坑區法拍案件|▓新店區法拍案件



 ▓永和區法拍案件|▓中和區法拍案件▓土城區法拍案件|▓三峽區法拍案件



 ▓樹林區法拍案件|▓鶯歌區法拍案件▓三重區法拍案件|▓新莊區法拍案件



 ▓泰山區法拍案件|▓林口區法拍案件▓蘆洲區法拍案件|▓五股區法拍案件



 ▓八里區法拍案件|▓淡水區法拍案件



桃園市法拍屋 請點選各區任意門



 ▲桃園區法拍案件|▲中壢區法拍案件▲蘆竹區法拍案件|▲龜山區法拍案件



 ▲八德區法拍案件|▲平鎮區法拍案件▲大園區法拍案件|▲大溪區法拍案件



 ▲新屋區法拍案件|▲楊梅區法拍案件▲龍潭區法拍案件|▲觀音區法拍案件



新竹縣市法拍屋 請點選各區任意門



 ★東區   法拍案件|★北區   法拍案件★香山區法拍案件|★竹北市法拍案件



 ★竹東鎮法拍案件|★新埔鎮法拍案件★湖口鄉法拍案件|★新豐鄉法拍案件



基隆市法拍屋 請點選各區任意門



 ★中正區法拍案件|★信義區法拍案件★仁愛區法拍案件|★中山區法拍案件



 ★安樂區法拍案件|★暖暖區法拍案件★七堵區法拍案件



宜蘭縣法拍屋 請點選各區任意門



 ●宜蘭市法拍案件|●頭城鎮法拍案件|●礁溪鄉法拍案件|●冬山鄉法拍案件



 ●蘇澳鎮法拍案件|●五結鄉法拍案件|●羅東鎮法拍案件|●員山鄉法拍案件



 ●南澳鎮法拍案件|●壯圍鄉法拍案件●三星鄉法拍案件



苗栗縣法拍屋 請點選各區任意門



 ▓苗栗市法拍案件|▓頭份市法拍案件▓竹南鎮法拍案件



------------------------------------------------------------------



■房屋案源■ 司法院法拍屋公告、台灣金融資產公司法拍屋金拍屋、國有財產署拍賣公告 

■房屋類型■ 透天、別墅、豪宅、店面、土地、獨立套房、公寓、電梯大樓、辦公室、廠房、純辦、住辦 

■品質保證■ 空屋點交、產權清楚、過濾輻射屋、海砂屋、凶宅 

■公司團隊■ 領導人及業務皆來自信義房屋、永慶房屋等直營體系,是您投資置產的首席顧問 

■專業律師■ 協助不點交程序、遺產持份變價分割、民法強制執行法訴訟 

■專業代書■ 不動產買賣過戶、移轉登記 

■金融行庫■ 代墊尾款、房屋貸款、青年首購、軍公教優惠房貸利率 

■其他服務■ 專業室內裝潢設計、包租代管、節稅規劃



------------------------------------------------------------------



 免費諮詢 →→  優室法拍  →→  林小陽  ~專線~  0966-781-595  

新北淡水店面法拍-0
新北淡水店面法拍-0
新北淡水店面法拍-1
新北淡水店面法拍-1
新北淡水店面法拍-2
新北淡水店面法拍-2
物件留言
請注意,如果您詢問的內容與物件不相符合或是廣告,經過審核,系統將會直接刪除您的發問內容
等待圖示
相似物件
免責聲明:House-Info房屋網平台系統為租用式開放房屋買賣網站建置平台,僅提供會員查詢-新北市,淡水區,店面-等房屋資訊參考,並不涉入任何諮詢、交易。 物件(服務)聯絡人公佈的資訊、文字、照片、圖形、產權、廣告內容、或其他資料若有不實或違法情事,或與客戶聯絡交易過程中若衍生民事或刑事等法律問題,皆與House-Info房屋網站無關,所有商標、文章、名稱等版權,皆歸屬原著作者所有!