新竹竹北透天法拍

台北法拍屋,台北市法拍屋,台北法院法拍屋

新竹竹北透天法拍|竹北市法拍屋嘉豐六路二段陽明交大漂亮透天六家高鐵特區優室法拍

陽明交大漂亮透天六家高鐵特區│嘉興路3號
列印
  • 售4250萬
    售3612萬5100元
    1. 案號:拍定3980.9萬
    2. 類型:法拍透天
    3. 總登記坪數:
    4. 每坪單價:
    5. 地址:新竹縣竹北市嘉興路3號 ★ 林小陽 0966-781-595
    1. (煩請告知聯絡人,您是在House-Info房屋網看到廣告,感恩幫忙)
    2. 0966-781-595
    1. 市話:
    2. 公司名稱:
    3. 公司地址:
    陽明交大漂亮透天六家高鐵特區│嘉興路3號-QR CODE 我要留言 加LINE好友
物件介紹
詳細資料
銷售狀態
待標中
格局
依房屋現場實際狀況為準
屋齡
17年
車位
車位
所在樓層
全棟4
電梯
沒有
法拍屋
開標日期
2026/03/25-14:30
瀏覽人次
130人次
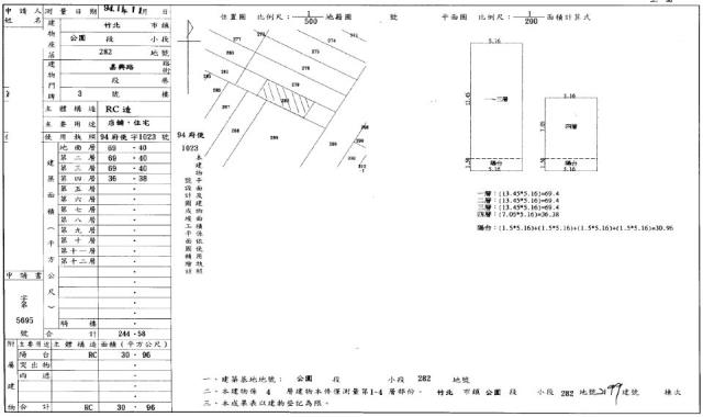
坪數說明
建物登記總坪數
159.97
主建物
20.99*3+11
附屬建物
9.36
增建
10.17+8.16*3+41.99
土地登記總坪數
42.08
特色描述

Google 商店五星推薦 指定合法不動產經紀業 加入仲介公會顧客有保障 



 馬上熱搜 →→  優室法拍  →→  林小陽  ~專線~  0966781595  



------------------------------------------------------------------



陽明交大漂亮透天六家高鐵特區│嘉興路3號



本物件拍賣資訊,若有遺誤,概以執行單位公告為準。 



------------------------------------------------------------------



台北市法拍屋 請點選各區任意門



 ●中正區法拍案件|●大同區法拍案件|●中山區法拍案件|●松山區法拍案件



 ●大安區法拍案件|●萬華區法拍案件|●信義區法拍案件|●士林區法拍案件



 ●北投區法拍案件|●內湖區法拍案件●南港區法拍案件|●文山區法拍案件



新北市法拍屋 請點選各區任意門



 ▓板橋區法拍案件|▓汐止區法拍案件▓深坑區法拍案件|▓新店區法拍案件



 ▓永和區法拍案件|▓中和區法拍案件▓土城區法拍案件|▓三峽區法拍案件



 ▓樹林區法拍案件|▓鶯歌區法拍案件▓三重區法拍案件|▓新莊區法拍案件



 ▓泰山區法拍案件|▓林口區法拍案件▓蘆洲區法拍案件|▓五股區法拍案件



 ▓八里區法拍案件|▓淡水區法拍案件



桃園市法拍屋 請點選各區任意門



 ▲桃園區法拍案件|▲中壢區法拍案件▲蘆竹區法拍案件|▲龜山區法拍案件



 ▲八德區法拍案件|▲平鎮區法拍案件▲大園區法拍案件|▲大溪區法拍案件



 ▲新屋區法拍案件|▲楊梅區法拍案件▲龍潭區法拍案件|▲觀音區法拍案件



新竹縣市法拍屋 請點選各區任意門



 ★東區   法拍案件|★北區   法拍案件★香山區法拍案件|★竹北市法拍案件



 ★竹東鎮法拍案件|★新埔鎮法拍案件★湖口鄉法拍案件|★新豐鄉法拍案件



基隆市法拍屋 請點選各區任意門



 ★中正區法拍案件|★信義區法拍案件★仁愛區法拍案件|★中山區法拍案件



 ★安樂區法拍案件|★暖暖區法拍案件★七堵區法拍案件



宜蘭縣法拍屋 請點選各區任意門



 ●宜蘭市法拍案件|●頭城鎮法拍案件|●礁溪鄉法拍案件|●冬山鄉法拍案件



 ●蘇澳鎮法拍案件|●五結鄉法拍案件|●羅東鎮法拍案件|●員山鄉法拍案件



 ●南澳鎮法拍案件|●壯圍鄉法拍案件●三星鄉法拍案件



苗栗縣法拍屋 請點選各區任意門



 ▓苗栗市法拍案件|▓頭份市法拍案件▓竹南鎮法拍案件



------------------------------------------------------------------



■房屋案源■ 司法院法拍屋公告、台灣金融資產公司法拍屋金拍屋、國有財產署拍賣公告 

■房屋類型■ 透天、別墅、豪宅、店面、土地、獨立套房、公寓、電梯大樓、辦公室、廠房、純辦、住辦 

■品質保證■ 空屋點交、產權清楚、過濾輻射屋、海砂屋、凶宅 

■公司團隊■ 領導人及業務皆來自信義房屋、永慶房屋等直營體系,是您投資置產的首席顧問 

■專業律師■ 協助不點交程序、遺產持份變價分割、民法強制執行法訴訟 

■專業代書■ 不動產買賣過戶、移轉登記 

■金融行庫■ 代墊尾款、房屋貸款、青年首購、軍公教優惠房貸利率 

■其他服務■ 專業室內裝潢設計、包租代管、節稅規劃



------------------------------------------------------------------



 免費諮詢 →→  優室法拍  →→  林小陽  ~專線~  0966-781-595  

新竹竹北透天法拍-0
新竹竹北透天法拍-0
新竹竹北透天法拍-1
新竹竹北透天法拍-1
新竹竹北透天法拍-2
新竹竹北透天法拍-2
物件留言
請注意,如果您詢問的內容與物件不相符合或是廣告,經過審核,系統將會直接刪除您的發問內容
等待圖示
相似物件
免責聲明:House-Info房屋網平台系統為租用式開放房屋買賣網站建置平台,僅提供會員查詢-新竹縣,竹北市,透天-等房屋資訊參考,並不涉入任何諮詢、交易。 物件(服務)聯絡人公佈的資訊、文字、照片、圖形、產權、廣告內容、或其他資料若有不實或違法情事,或與客戶聯絡交易過程中若衍生民事或刑事等法律問題,皆與House-Info房屋網站無關,所有商標、文章、名稱等版權,皆歸屬原著作者所有!